Tổng quan dự án

  • Tên dự án: Nhà Ở Xã Hội Tổng Kho 3 Lạc Viên – Harbor Residence
  • Vị trí: Số 142 Lê Lai, quận Ngô Quyền, thành phố Hải Phòng.
  • Chủ đầu tư: Công ty cổ phần Thái Holding.
  • Nhà thầu thi công: Tập đoàn xây dựng Hòa Bình
  • Mật độ xây dựng: 48%
  • Quy mô: Tổng dt 16,9 ha gồm 10 tòa nhà 15 tầng với 4456 căn hộ từ tầng 3-15 và 163 căn shophouse thương mại 6,5 tầng.
  • Loại sản phẩm: Căn hộ đa dạng dt 29m2, 33m2 (1pn), 46m2, 50m2, 51m2, 54m2, 55m2 (2pn), Shophouse dt 78m2 mặt tiền 6m xây 6,5 tầng hoàn thiện mặt ngoài.
  • Pháp lý: Sổ hồng sở hữu lâu dài.
  • Thời gian bàn giao: Quý 3/2025
Đăng Ký Nhận Thông Tin Mới Nhất

Vị trí trung tâm thành phố

Tọa lạc tại số 142 Lê Lai, phường Máy Chai, quận Ngô Quyền, thành phố Hải Phòng, Harbor Residence chỉ cách Nhà hát lớn 5 phút di chuyển, bên cạnh các chợ dân sinh, siêu thị tiện lợi như chợ Vạn Mỹ, chợ Máy Chai, siêu thị CoopMart… Cư dân Harbor Residence cũng hoàn toàn yên tâm về chăm sóc sức khỏe tại các trung tâm y tế, bệnh viện lớn bởi khoảng cách di chuyển đều chỉ mất từ 5 đến 10 phút mà thôi. Ngoài ra, trẻ em tại Harbor Residence luôn được quan tâm và tận hưởng những tiện ích học tập, vui chơi khi khu vui chơi trẻ em, trường mầm non, trường tiểu học, trường THCS được bố trí ngay trong khuôn viên dự án.

Tiện ích tiên phong

Tiện ích nội khu: Shophouse, siêu thị tiện lợi, trường mầm non ngay trong tòa nhà, công viên cây xanh, đường dạo bộ, khu vui chơi trẻ em, thể dục thể thao, khu vực sinh hoạt cộng đồng, nhà để xe tầng 1,2, an ninh bảo vệ 24/7.

Tiện ích ngoại khu: Chợ Vạn Mỹ, trung tâm thành phố, Bệnh viện Việt Tiệp, Đa khoa quốc tế, trường học các cấp, Trung tâm thương mại… trong bán kính 2km. Cách Đảo Vũ Yên – thiên đường vui chơi giải trí chỉ 7p đi xe qua cầu Hoàng Gia (Máy Chai).

Công viên nội khu

Phòng tập thể dục

Trung tâm thương mại

Trường học các cấp

Công viên cây xanh

Hệ thống an ninh nhiều lớp

Mặt bằng tổng thể

Toà CT 3 – CT 4

Toà CT 5 – CT 6

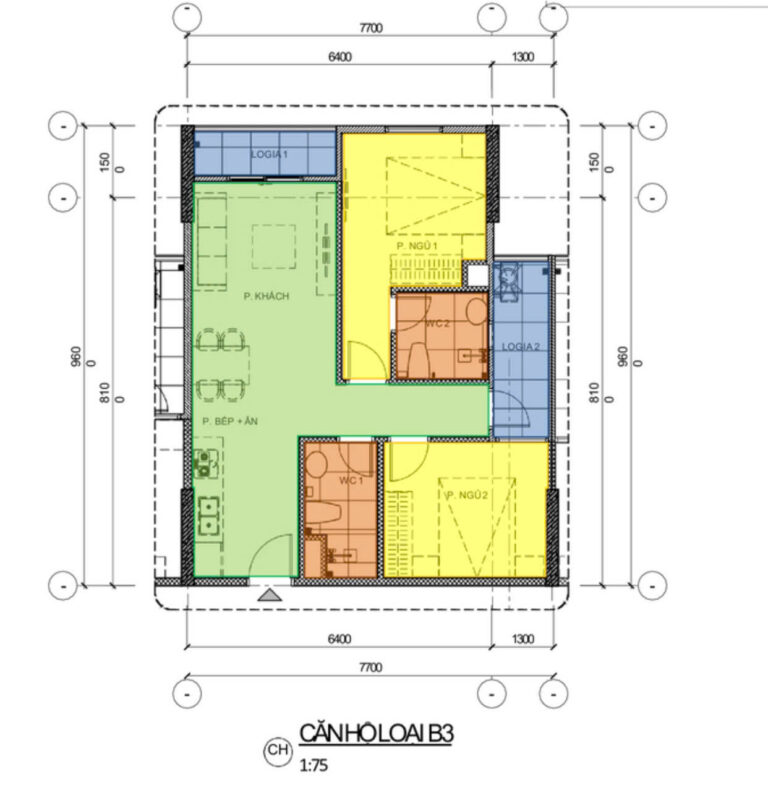
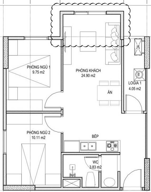
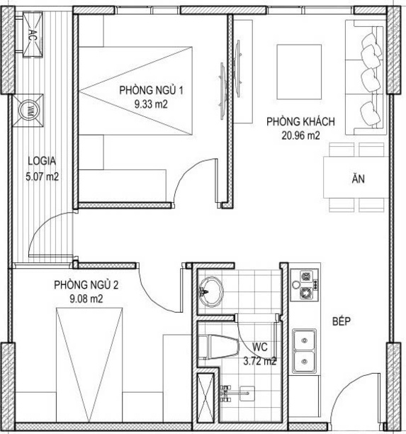
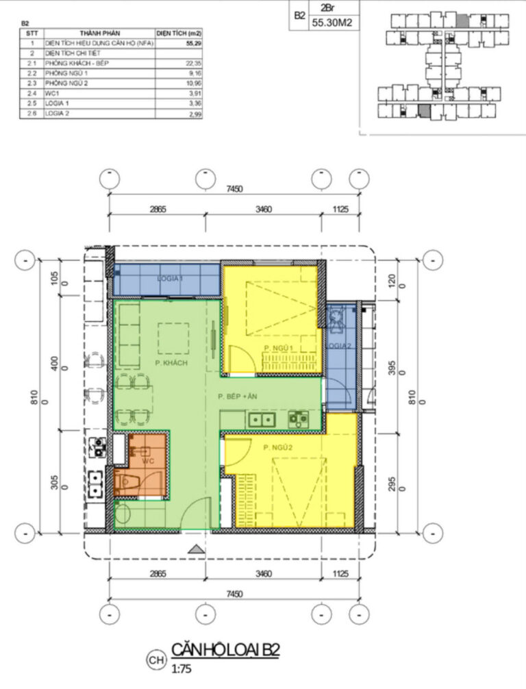
Mặt bằng căn hộ

Mặt bằng căn hộ A1

  • Căn hộ 2 phòng ngủ + 1 WC
  • Diện tích thông thủy 54.98m2

Mặt bằng căn hộ A2

  • Căn hộ 2 phòng ngủ + 1 WC
  • Diện tích thông thủy 50.64m2

Mặt bằng căn hộ A1a

  • Căn hộ 2 phòng ngủ + 1 WC
  • Diện tích thông thủy 51.35m2

Mặt bằng căn hộ A3

  • Căn hộ Studio 1 phòng ngủ + 1 WC
  • Diện tích thông thủy 29.32m2

Mặt bằng căn hộ A5

  • Căn hộ 2 phòng ngủ + 1 WC
  • Diện tích thông thủy 54.2m2

Điều kiện mua NOXH từ 1/8/2024

ĐIỀU KIỆN VỀ SỞ HỮU NHÀ Ở:

  • Chưa có nhà ở thuộc sở hữu của mình tại Hải Phòng, chưa được mua hoặc thuê mua nhà ở xã hội, chưa được hưởng chính sách hỗ trợ nhà ở dưới mọi hình thức tại Hải Phòng.
  • Hoặc có nhà ở thuộc sở hữu của mình nhưng diện tích nhà ở bình quân đầu người thấp hơn 15m2 sàn/người, bao gồm: người đứng đơn, vợ (chồng) của người đó, cha, mẹ (nếu có) và các con của người đó (nếu có) đăng ký thường trú tại căn nhà đó.

ĐIỀU KIỆN VỀ THU NHẬP:

  • Đối tượng số 5, 6, 8: Thu nhập hàng tháng thực nhận không quá 15 triệu đồng với trường hợp độc thân. Hoặc tổng thu nhập hàng tháng thực nhận của 2 vợ chồng không quá 30 triệu đồng với trường hợp đã kết hôn.
  • Đối tượng số 7 (Lực lượng vũ trang nhân dân): Thu nhập hàng tháng thực nhận không quá tổng thu nhập của sỹ quan có cấp bậc hàm Đại tá với trường hợp độc thân. Hoặc tổng thu nhập hàng tháng thực nhận của 2 vợ chồng không quá 2,0 lần tổng thu nhập của sỹ quan có cấp bậc hàm Đại tá với trường hợp đã kết hôn có 2 vợ chồng cùng thuộc Đối tượng số 7. Hoặc tổng thu nhập hàng tháng thực nhận của 2 vợ chồng không quá 1,5 lần tổng thu nhập của sỹ quan có cấp bậc hàm Đại tá với trường hợp đã kết hôn có vợ (chồng) không thuộc Đối tượng số 7
  • Đối tượng số 1, 2, 3, 4: Thu nhập theo quy định về chuẩn nghèo của Chính phủ và Pháp lệnh Ưu đãi người có công với cách mạng.

CÁC BƯỚC ĐĂNG KÝ MUA NHÀ Ở XÃ HỘI:

  • Bước 1: Xác định đối tượng được mua Nhà Ở Xã Hội
  • Bước 2: Kiểm tra các thông tin về dự án nhà ở xã hội: vị trí, diện tích, giá bán, chính sách hỗ trợ, tiến độ thi công,…
  • Bước 3: Đăng ký mua nhà
  • Bước 4: Chuẩn bị hồ sơ: CCCD, đăng ký kết hôn hoặc giấy xác nhận đôc thân, giấy xác nhận đối tượng, giấy xác nhận điều kiện thu nhập, giấy xác nhận điều kiện nhà ở…. (Liên hệ tư vấn miễn phí 0788.33.9986)
  • Bước 5: Ký hợp đồng mua nhà
  • Bước 6: Thanh toán và nhận nhà theo đúng tiến độ và quy định trong hợp đồng.

10 ĐỐI TƯỢNG ĐƯỢC MUA NHÀ Ở XÃ HỘI:

  • Số 1: Người có công với cách mạng, thân nhân liệt sĩ theo quy định của Pháp lệnh Ưu đãi người có công với cách mạng.
  • Số 2: Hộ gia đình nghèo, cận nghèo tại khu vực nông thôn.
  • Số 3: Hộ gia đình nghèo, cận nghèo tại khu vực nông thôn thuộc vùng thường xuyên bị ảnh hưởng bởi thiên tai, biến đổi khí hậu.
  • Số 4: Hộ gia đình nghèo, cận nghèo tại khu vực đô thị.
  • Số 5: Người thu nhập thấp tại khu vực đô thị.
  • Số 6: Công nhân, người lao động đang làm việc tại doanh nghiệp, hợp tác xã, liên hiệp hợp tác xã trong và ngoài khu công nghiệp.
  • Số 7: Sĩ quan, quân nhân chuyên nghiệp, hạ sĩ quan thuộc lực lượng vũ trang nhân dân, công nhân công an, công chức, công nhân và viên chức quốc phòng đang phục vụ tại ngũ; người làm công tác cơ yếu, người làm công tác khác trong tổ chức cơ yếu hưởng lương từ ngân sách nhà nước đang công tác.
  • Số 8: Cán bộ, công chức, viên chức theo quy định của pháp luật về cán bộ, công chức, viên chức.
  • Số 9: Đối tượng đã trả lại nhà ở công vụ theo quy định tại khoản 4 Điều 125 của Luật Nhà ở 2023, trừ TH bị thu hồi nhà ở công vụ do vi phạm quy định.
  • Số 10: Hộ gia đình, cá nhân bị thu hồi đất và phải giải tỏa, phá dỡ nhà ở theo quy định của pháp luật mà chưa được bồi thường bằng nhà ở, đất ở.

Hình ảnh thực tế